| Description | Melkbosstand Luxury Apartments Luxury Beachfront Residential Apartments |
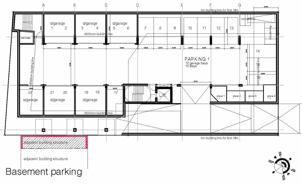
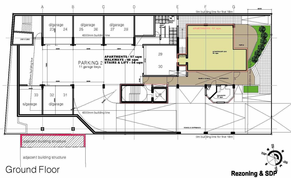
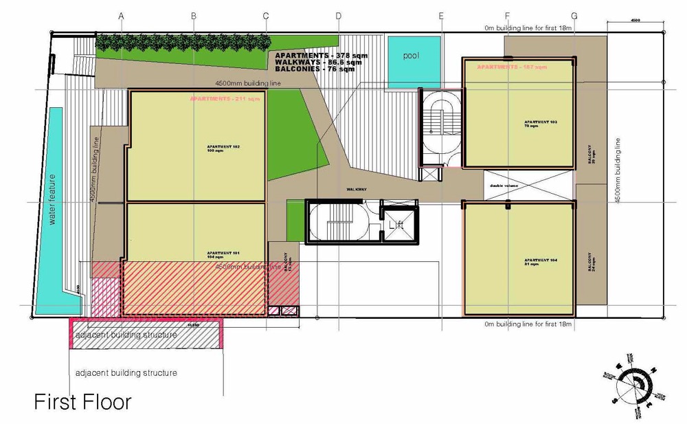
| Scale | 1144 sqm (erf) 1426 sqm (total floor area bulk) 13 x 3-bedroom apartments (110 sqm average) 33 x Parking Bays |
| Current Phase | Land Deal – Complete Planning & Design – Complete Zoning – Complete Environmental Approval – In Progress |
| Completion | 2024 (estimated) |
| Location | Erven 2475 & 4115 43 1st avenue Melkbosstrand Cape Town 7441 |










